ID CP1331072

Duplex Deosebit cu 4 camere in Cisnadie- COMISION 0%

Această proprietate nu mai este activă,
te invităm să vizualizezi proprietăți similare

ID CP1331072

169,000 €

Casă / Vilă cu 4 camere de vânzare
Vest, Cisnadie
120 mp
2021

Casa Tip Duplex in Cisnadie- Comision 0%

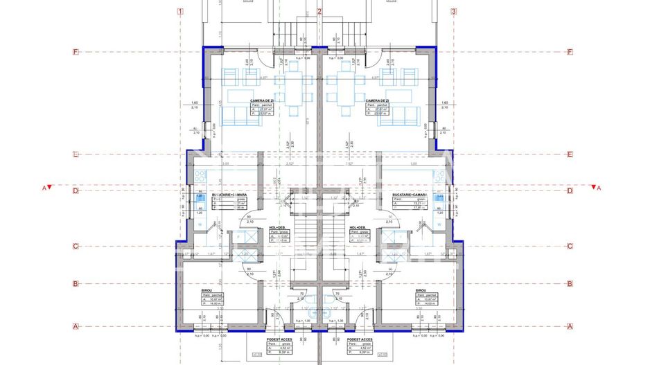
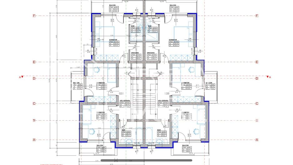
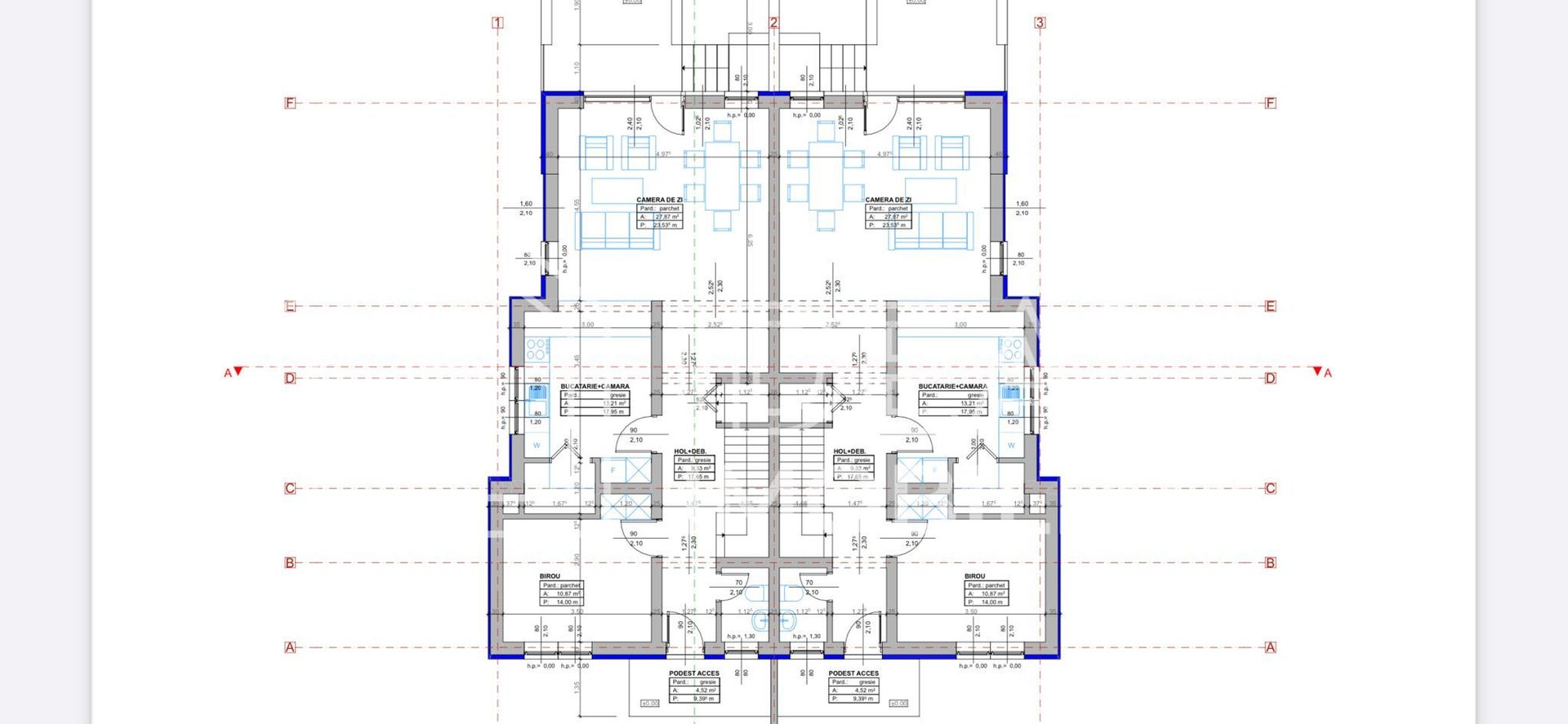
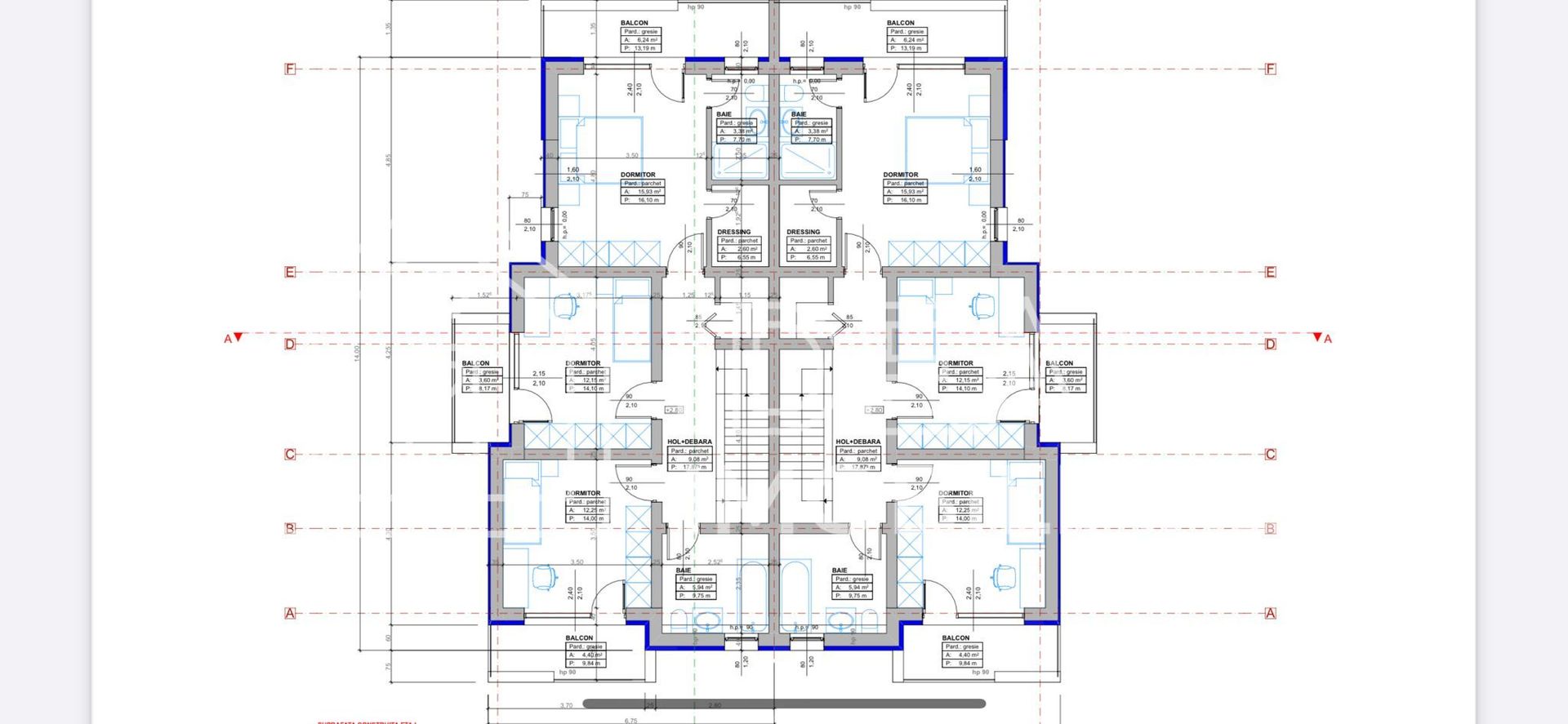
Casa Moderna in Cisnadie, cu un regim de inaltime P+1+Pod, casa dispune de 315 mp de teren din care 230„ mp curte libera amenjata ,o terasa de 13 mp, iar la interior dispune de o suprafata utila de 150 mp structurata astfel:

-La parter un living de 27,87 mp, o bucatarie de 13,21 mp ,o baie de 4.3 mp, birou 10,87 mp si hol 9,33 mp + terasa;

-La etaj de 3 dormitoare generoase de 15,93 mp, 12,21 mp si 12,25 mp, o baie de 6,5 mp.

-Casele Se predau la stadiul 'ALB' la interior astfel: peretii complet finisati cu 3 maini de glet, sape elicopterizate, instalatie de incalzire prin pardoseala la etaj si parter, centrala proprie , instalatie electrica completa, instalatie sanitara pe pozitie,toate utilitatiile cu contoare montate;

-La exterior acestea se predau 'LA CHEIE' astfel: ,alei pietonale si loc de parcare in curte amenajate cu dale de beton, gard de imprejmuire, si portita de intrare.

-Se accepta prin orice modalitate de plata

Pret: 169.000 Euro

Telefon: 0744427504

Citește mai mult

  • Număr camere
    4
  • Dormitoare
    3
  • Număr bucătării
    1
  • Număr băi
    2
  • Geam la baie
    Da
  • Disponibilitate
    Imediat
  • Tip casă
    Duplex
  • Stare interior
    Finisat modern
  • Anul finisării
    2021
  • Suprafață utilă
    120 mp
  • Suprafață construită
    145 mp
  • Suprafață teren
    315 mp
  • Suprafață curte
    230 mp
  • Suprafață curte liberă
    230 mp
  • Suprafață terasă
    12 mp
  • Deschidere
    13 m
  • Acoperiș
    Țiglă
  • Stadiu construcție
    În construcție
  • An construcție
    2021
  • Construcție nouă
    Da
  • Tip construcție
    Cărămidă
  • Număr etaje clădire
    1
  • Are pod
    Da

Facilități

Apă
Apometre
Bucătărie închisă
Calorifere
Canalizare
CATV
Centrală proprie
Contor căldură
Contor electric
Contor gaz
Curent
Curte
Gaz
Geamuri tripan
Grădină proprie
Iluminat stradal
Încălzire prin pardoseală
Internet
Izolație exterioară
Mijloace de transport în comun
Șapă
Străzi asfaltate
Telefon
Ușă intrare PVC
Vedere panoramică
Vedere spre munte
Vopsea lavabilă
Zonă pentru barbeque
Necesare:

Site-ul nu poate funcționa corect fără aceste cookie-uri. Vezi cookie-urile

Statistică:

Strângem statistici anonime despre voi, vizitatorii unici, pentru a vă îmbunătăți experiența dumneavoastră. Vezi cookie-urile

Marketing:

Pentru a ne promova mai eficient serviciile noastre, folosim cookies pentru a vă identifica și a vă oferi proprietăți și servicii personalizate. Vezi cookie-urile

Acest site folosește cookies, află detalii. Alege ce tipuri de cookies dorești să permitem: