ID CP2754248

Penthouse modern cu 165 mp utili și 50 mp terasă, Calea Cisnadiei

ID CP2754248

205,000 €

Apartament cu 4 camere de vânzare
Arhitectilor - Calea Cisnadiei, Sibiu
165 mp
2020

Un penthouse deosebit, conceput pentru a oferi echilibrul perfect între confort, spațiu și rafinament. Cu o suprafață utilă de 165 mp și terase însumând 50 mp, această proprietate impresionează prin compartimentarea sa inteligentă și luminozitatea naturală care definește fiecare încăpere.

Situat la etajul 2 al unui bloc de apartamente de pe Strada Marcel Iancu, penthouse-ul oferă un plus de intimitate și liniște, fiind o alegere rar întâlnită pe piața imobiliară din zonă.

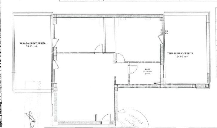
-Parterul reunește zona de zi și intimitatea unui dormitor, fiind alcătuit dintr-un living generos cu acces direct pe terasă, o bucătărie modernă, două terase ideale pentru relaxare sau dining exterior, baie, hol și un spațiu de depozitare.

-Etajul este dedicat zonei de noapte și cuprinde două dormitoare spațioase (26 mpu, resprectiv 24 mpu) , un dressing, și o baie, completând armonios atmosfera de intimitate și confort.

Terasele mari, priveliștile deschise și compartimentarea gândită în detaliu transformă acest penthouse într-o locuință rar întâlnită pe piață, ideală pentru cei care își doresc un stil de viață premium.

Pret: 205.000 Euro

Telefon: 0744427504 Mariana

Citește mai mult

  • Tip apartament
    Apartament
  • Compartimentare
    Decomandat
  • Număr camere
    4
  • Dormitoare
    3
  • Număr bucătării
    1
  • Număr băi
    2
  • Geam la baie
    Da
  • Etaj
    2
  • Suprafață utilă
    165 mp
  • Suprafață construită
    200 mp
  • Suprafață terasă
    50 mp
  • Disponibilitate
    Imediat
  • Orientare
    Est-Vest
  • Confort
    1
  • Stare interior
    Ultrafinisat
  • Anul finisării
    2024
  • Număr terase
    2
  • Număr locuri parcare
    2
  • Imobil
    Bloc de apart.
  • Stadiu construcție
    Finalizată
  • An construcție
    2020
  • Construcție nouă
    Da
  • Tip construcție
    Cărămidă
  • Număr etaje clădire
    2

Facilități

Acces pentru persoane cu dizabilități
Acoperiș
Aer condiționat
Aeroterme
Apă
Apometre
Aragaz
Bideu
Bucătărie deschisă
Bucătărie mobilată
Bucătărie utilată
Cabină de duș
Cadă
Calorifere
Canalizare
CATV
Centrală proprie
Contor căldură
Contor electric
Contor gaz
Curent
Debara
Dressing
Frigider
Gaz
Geamuri tripan
Gresie
Hotă
Iluminat stradal
Încălzire prin pardoseală
Interfon
Internet
Irigații
Izolație exterioară
Loc de joacă copii
Mașină de spălat rufe
Mașină de spălat vase
Mijloace de transport în comun
Mobilat complet
Mochetă
Scară interioară
Străzi asfaltate
Tapet
Telefon
TV
Ușă intrare metal
Uși interior lemn
Vedere panoramică
Vopsea lavabilă
Wireless
Zonă pentru barbeque
Mariana Bozesan - Ideal Imobiliare
Mariana Bozesan
Broker imobiliar

0744427504


Solicită chiar acum o vizionare
Telefon
Sună acum Solicită vizionare
Necesare:

Site-ul nu poate funcționa corect fără aceste cookie-uri. Vezi cookie-urile

Statistică:

Strângem statistici anonime despre voi, vizitatorii unici, pentru a vă îmbunătăți experiența dumneavoastră. Vezi cookie-urile

Marketing:

Pentru a ne promova mai eficient serviciile noastre, folosim cookies pentru a vă identifica și a vă oferi proprietăți și servicii personalizate. Vezi cookie-urile

Acest site folosește cookies, află detalii. Alege ce tipuri de cookies dorești să permitem: