ID CP2191836

Casa Individuala Moderna cu 5 camere si 668 mpu curte, in Cristian

ID CP2191836

255,000 €

Casă / Vilă cu 5 camere de vânzare
Cristian
184 mp
2024

Casa individuala cu 5 camere si 668 mp de curte, cu un design modern in Cristian

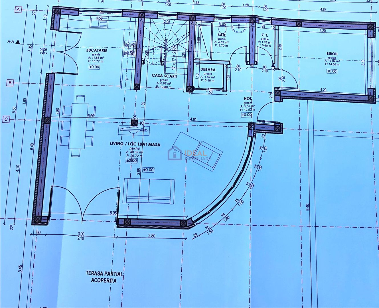
Imobilul are un regim de inaltime de P+M, are o suprafata utila de 184 de mp si este amplasat pe o parcela de 668 de mp.

Compartimentarea este facuta astfel:

-Parter: hol, living generos cu loc de luat masa si iesire pe terasa (40 mpu), bucatarie separata, baie de servici, debara, camera tehnica si un birou/dormitor (13 mpu);

-Etaj: dormitor matrimonial generos cu o suprafata de 27 mpu cu dressing plus o baie proprie, un dormitor/birou de 16.59, si al treilea dormitor cu dressing si baie proprie, si acces spre un balcon de 12 mpu.

-Casa se preda la exterior LA CHEIE: curte amenajata cu gard, portita acces, poarta acces auto,

-La interior stadiul de predare al casei este 'LA ALB' la interior astfel: peretii complet finisati , sape elicopterizate, instalatie de incalzire prin pardoseala, centrala termica in condensare, instalatie electrica completa ,instalatie sanitara pe pozitie, toate utilitatiile cu contoare montate.

-Predarea casei se face in martie 2025.

-Pozele de la amenajarea curtii sunt cu titlu de prezentare, exteriorul nu este finalizat in acest moment.

Pret 255.000 Euro - se accepta Plata Cash sau Credit

Telefon: 0744427504- Mariana

Citește mai mult

  • Număr camere
    5
  • Dormitoare
    4
  • Număr bucătării
    1
  • Număr băi
    3
  • Geam la baie
    Da
  • Număr terase
    1
  • Număr locuri parcare
    4
  • Disponibilitate
    Imediat
  • Tip casă
    Individual
  • Stare interior
    Finisat modern
  • Anul finisării
    2024
  • Suprafață utilă
    184 mp
  • Suprafață construită
    217 mp
  • Suprafață construită la sol (Amprentă)
    108.0 mp
  • Suprafață teren
    668 mp
  • Suprafață curte
    568 mp
  • Suprafață curte liberă
    568 mp
  • Suprafață terasă
    30 mp
  • Deschidere
    20 m
  • Acoperiș
    Țiglă
  • Stadiu construcție
    Finalizată
  • An construcție
    2024
  • Construcție nouă
    Da
  • De la dezvoltator
    Da
  • Tip construcție
    Cărămidă
  • Număr etaje retrase
    1

Facilități

Acoperiș
Apă
Apometre
Canalizare
CATV
Centrală proprie
Contor căldură
Contor electric
Contor gaz
Curent
Gaz
Geamuri tripan
Grădină proprie
Iluminat stradal
Încălzire prin pardoseală
Internet
Izolație exterioară
Mijloace de transport în comun
Șapă
Străzi asfaltate
Telefon
Ușă intrare metal
Vedere panoramică
Vopsea lavabilă
Mariana Bozesan - Ideal Imobiliare
Mariana Bozesan
Broker imobiliar

0744427504


Solicită chiar acum o vizionare
Telefon
Sună acum Solicită vizionare
Necesare:

Site-ul nu poate funcționa corect fără aceste cookie-uri. Vezi cookie-urile

Statistică:

Strângem statistici anonime despre voi, vizitatorii unici, pentru a vă îmbunătăți experiența dumneavoastră. Vezi cookie-urile

Marketing:

Pentru a ne promova mai eficient serviciile noastre, folosim cookies pentru a vă identifica și a vă oferi proprietăți și servicii personalizate. Vezi cookie-urile

Acest site folosește cookies, află detalii. Alege ce tipuri de cookies dorești să permitem: