ID CP2925536

Casa Individuala cu 4 camere cu 500 mp de curte, in Cisnadie

ID CP2925536

227,000 €

Casă / Vilă cu 4 camere de vânzare
Central, Cisnadie
135 mp
2025

🏡 Casă individuală pe un singur nivel – 150 mp construiți – Teren generos – Zonă liniștită

Vă propunem spre vânzare o casă individuală, regim parter, cu arhitectură modernă și compartimentare eficientă, amplasată pe un teren generos, cu acces auto și pietonal separat.

Proprietatea este ideală pentru o familie care își dorește confort, intimitate și funcționalitate, totul pe un singur nivel.

📐 Date tehnice:

Regim de înălțime: Parter

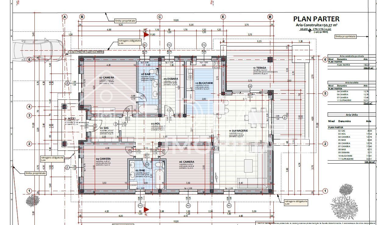
Suprafață construită: 150,37 mp

Suprafață utilă: aproximativ 130 mp

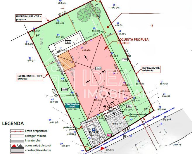
Teren împrejmuit

Acces auto + acces pietonal

Terasă acoperită

🏠 Compartimentare:

02 SAS – 4,69 mp

03 HOL – 17,54 mp

04 CAMERĂ – 12,78 mp

06 CAMERĂ – 12,78 mp

07 CAMERĂ – 17,40 mp

05 BAIE – 6,44 mp

08 BAIE – 6,44 mp

09 DEBARĂ – 7,77 mp

10 BuCĂTĂRIE – 11,98 mp

11 SUFRAGERIE – 32,51 mp

Compartimentarea este foarte bine gândită, cu zonă de zi separată de zona de noapte.

Livingul generos de peste 32 mp oferă acces direct către terasa acoperită, fiind perfect pentru relaxare și momente petrecute în familie.

Bucătăria este separată, cu spațiu suficient pentru mobilare eficientă.

Dormitorul matrimonial beneficiază de suprafață generoasă, iar celelalte două camere pot fi utilizate ca dormitoare pentru copii, birou sau cameră de oaspeți.

Pret: 227.000 Euro

Telefon: 0744427504 Mariana

Citește mai mult

  • Număr camere
    4
  • Dormitoare
    3
  • Număr bucătării
    1
  • Număr băi
    2
  • Număr terase
    1
  • Număr locuri parcare
    2
  • Disponibilitate
    Imediat
  • Tip casă
    Individual
  • Stare interior
    Finisat modern
  • Anul finisării
    2025
  • Suprafață utilă
    135 mp
  • Suprafață construită
    150 mp
  • Suprafață construită la sol (Amprentă)
    150.0 mp
  • Suprafață teren
    503 mp
  • Suprafață curte
    400 mp
  • Suprafață curte liberă
    400 mp
  • Suprafață terasă
    20 mp
  • Deschidere
    20 m
  • Acoperiș
    Țiglă
  • Stadiu construcție
    Finalizată
  • An construcție
    2025
  • Construcție nouă
    Da
  • De la dezvoltator
    Da
  • Tip construcție
    Cărămidă
  • Are pod
    Da

Facilități

Acoperiș
Aer condiționat
Apă
Apometre
Aragaz
Canalizare
CATV
Contor căldură
Contor electric
Contor gaz
Curent
Curent trifazic (380V)
Fosă septică
Gaz
Internet
Izolație exterioară
Șapă
Telefon
Vedere panoramică
Mariana Bozesan - Ideal Imobiliare
Mariana Bozesan
Broker imobiliar

0744427504


Solicită chiar acum o vizionare
Telefon
Sună acum Solicită vizionare
Necesare:

Site-ul nu poate funcționa corect fără aceste cookie-uri. Vezi cookie-urile

Statistică:

Strângem statistici anonime despre voi, vizitatorii unici, pentru a vă îmbunătăți experiența dumneavoastră. Vezi cookie-urile

Marketing:

Pentru a ne promova mai eficient serviciile noastre, folosim cookies pentru a vă identifica și a vă oferi proprietăți și servicii personalizate. Vezi cookie-urile

Acest site folosește cookies, află detalii. Alege ce tipuri de cookies dorești să permitem: