ID CP2578552

Casă Individuală de Vânzare | In Cisnădioara | 900 mp teren | 187 mpu

ID CP2578552

488,000 €

Casă / Vilă cu 4 camere de vânzare
Cisnadioara
187 mp
2023

Proprietate situată într-una dintre cele mai căutate zone din apropierea Sibiului – Cisnădioara – într-un cadru natural deosebit, cu priveliște și liniște.

Imobilul are un regim de înălțime P+1+P, o suprafață utilă totală de 187 mp și este amplasat pe un teren generos de 900 mp.

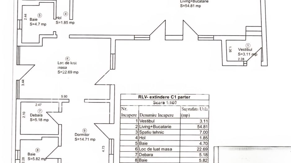
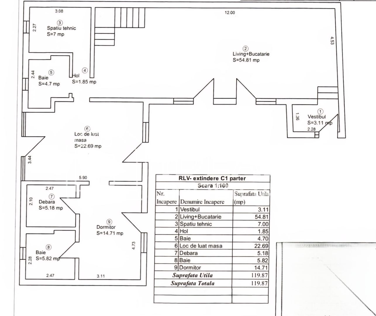
Compartimentare:

Parter: hol 2 mp, living + bucătărie 55 mp, loc de luat masa 23 mp, dormitor 15 mp, baie principală 6 mp, baie de serviciu 5 mp, spațiu tehnic 7 mp, debara 5 mp, vestibul 3 mp.

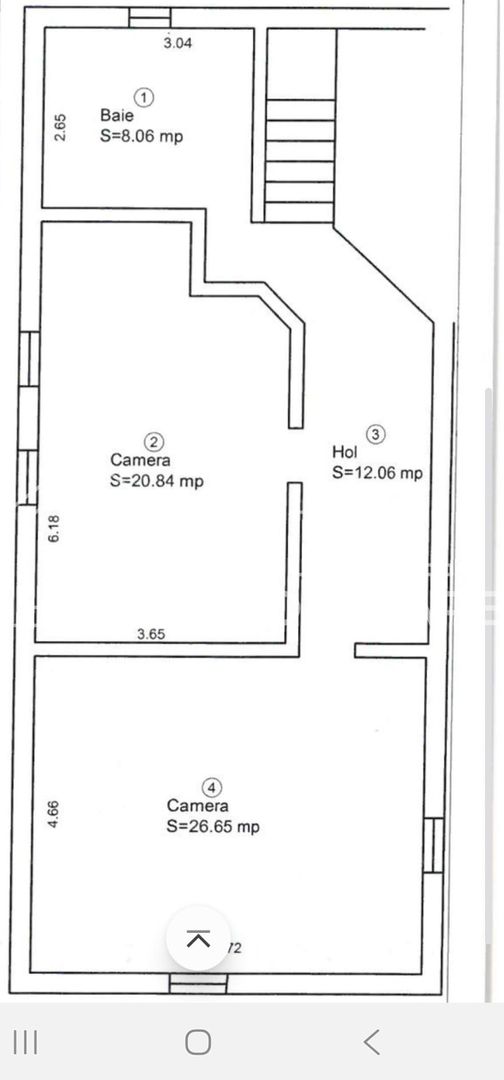
Etaj: dormitor 21 mp, dormitor 27 mp, hol 12 mp, baie 8 mp.

Finisaje și dotări – predare la cheie

Interior: pereți finisați cu lavabilă albă, șapă elicopterizată, încălzire în pardoseală la parter și etaj, centrală termică în condensare, instalație electrică completă (prize și întrerupătoare incluse), instalație sanitară trasă pe poziții, pervaze PVC albe, gresie, parchet și uși interioare (la alegere, în limita unui buget).

Exterior: fațadă ventilată, gresie antiderapantă pe balcon și la intrare, alei pietonale și locuri de parcare amenajate cu dale de beton, zonă verde cu gazon, gard de împrejmuire, poartă acces auto și poartă pietonală.

Pe teren se află și o casă veche (demisol + parter), ideală pentru recondiționare – spațiu de oaspeți, birou, atelier sau locuință separată.

Preț: 488.000 Euro

Telefon: 0744 427 504

Citește mai mult

  • Număr camere
    4
  • Dormitoare
    3
  • Număr bucătării
    1
  • Geam la baie
    Da
  • Număr balcoane
    1
  • Număr locuri parcare
    4
  • Disponibilitate
    Imediat
  • Tip casă
    Individual
  • Stare interior
    Finisat clasic
  • Anul finisării
    2025
  • Suprafață utilă
    187 mp
  • Suprafață construită
    250 mp
  • Suprafață teren
    900 mp
  • Suprafață curte
    700 mp
  • Suprafață curte liberă
    750 mp
  • Suprafață terasă
    50 mp
  • Deschidere
    20 m
  • Acoperiș
    Țiglă
  • Stadiu construcție
    Finalizată
  • An construcție
    2023
  • Construcție nouă
    Da
  • Tip construcție
    Cărămidă
  • Număr etaje clădire
    1
  • Are pod
    Da

Facilități

Acoperiș
Apă
Apometre
Calorifere
Canalizare
CATV
Centrală proprie
Contor căldură
Contor electric
Contor gaz
Curent
Debara
Dressing
Gaz
Geamuri tripan
Grădină proprie
Iluminat stradal
Încălzire prin pardoseală
Internet
Izolație exterioară
Mijloace de transport în comun
Parchet
Șemineu
Străzi asfaltate
Telefon
Ușă intrare metal
Uși interior MDF
Vedere panoramică
Vopsea lavabilă
Mariana Bozesan - Ideal Imobiliare
Mariana Bozesan
Broker imobiliar

0744427504


Solicită chiar acum o vizionare
Telefon
Sună acum Solicită vizionare
Necesare:

Site-ul nu poate funcționa corect fără aceste cookie-uri. Vezi cookie-urile

Statistică:

Strângem statistici anonime despre voi, vizitatorii unici, pentru a vă îmbunătăți experiența dumneavoastră. Vezi cookie-urile

Marketing:

Pentru a ne promova mai eficient serviciile noastre, folosim cookies pentru a vă identifica și a vă oferi proprietăți și servicii personalizate. Vezi cookie-urile

Acest site folosește cookies, află detalii. Alege ce tipuri de cookies dorești să permitem: