ID CP2533758

Casa Individuala Moderna cu 4 camere si 316 mp curte, in Cristian

ID CP2533758

250,000 € (negociabil)

Casă / Vilă cu 4 camere de vânzare
Cristian
120 mp
2025

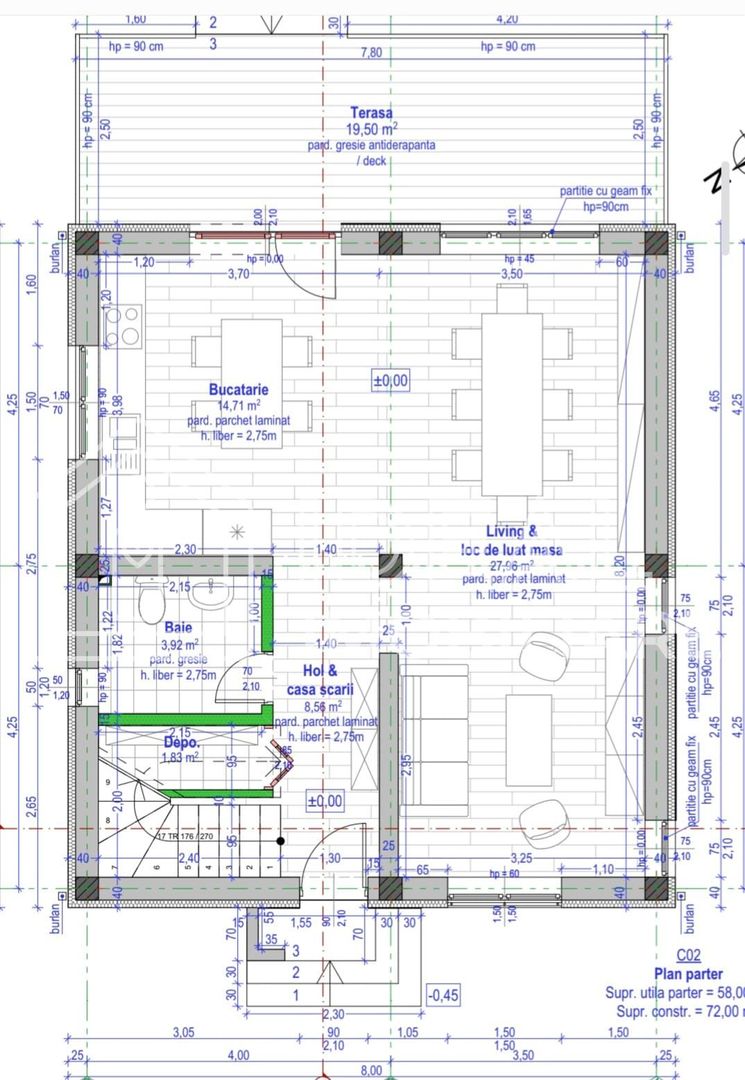
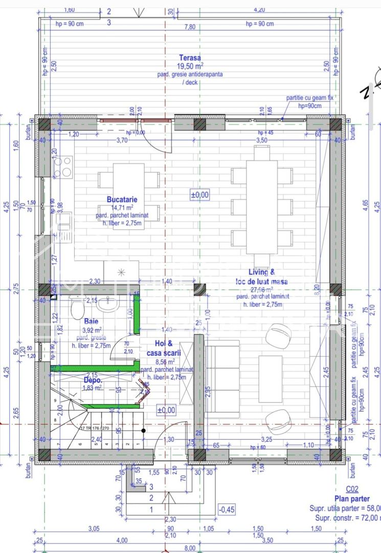
Regimul de inaltime al casei este: P+M+Pod

- Casa are o suprafata utila de 108 mp. Suprafata de teren aferent casei este de 316 mp, curte libera aproximativ 230 mp .

- Compartimentare practica :

*parter: hol de acces, un living spatios cu bucatarie open space cu acces pe o terasa in suprafata de 21 mp, o baie, spatiu de depozitare situat sub scari.

*etaj: hol, trei dormitoare si o baie.

*pod strict pentru depozitare.

- Casa se va preda la stadiul de CHEIE la interior: incalzire in pardoseala atat la parter cat si la etaj, centrala termica, geamuri Salamander cu 3 foi de sticla 7 camere, peretii cu lavabila alba, usi de interior, baile amenajate, parchet.

- La exterior casa se preda la CHEIE: izolatie cu vata bazaltica, decorativa, curte frumos amenajata cu pavaj acces auto si pietonal, gazon, gard, poarta.

- Imobilul este intabulat si racordat la apa, canal, gaz, cablu TV si internet.

- Mod de plata agreat: cash/credit bancar.

Pret: 230.000 Euro

Telefon: 0744427504 Mariana

Citește mai mult

  • Număr camere
    4
  • Dormitoare
    3
  • Număr bucătării
    2
  • Număr terase
    21
  • Număr locuri parcare
    4
  • Disponibilitate
    Imediat
  • Tip casă
    Individual
  • Stare interior
    Finisat modern
  • Anul finisării
    2024
  • Suprafață utilă
    120 mp
  • Suprafață construită
    150 mp
  • Suprafață construită la sol (Amprentă)
    75.0 mp
  • Suprafață teren
    316 mp
  • Suprafață curte
    240 mp
  • Suprafață curte liberă
    240 mp
  • Deschidere
    20 m
  • Acoperiș
    Țiglă
  • Stadiu construcție
    Finalizată
  • An construcție
    2025
  • Construcție nouă
    Da
  • De la dezvoltator
    Da
  • Tip construcție
    Cărămidă
  • Număr etaje clădire
    1
  • Are pod
    Da

Facilități

Aer condiționat
Apă
Apometre
Bucătărie deschisă
Bucătărie mobilată
Bucătărie parțial mobilată
Cabină de duș
Cadă
Canalizare
CATV
Centrală proprie
Contor căldură
Contor electric
Contor gaz
Curent
Gaz
Grădină proprie
Iluminat stradal
Încălzire prin pardoseală
Internet
Izolație exterioară
Mijloace de transport în comun
Străzi asfaltate
Telefon
Vedere panoramică
Vopsea lavabilă
Mariana Bozesan - Ideal Imobiliare
Mariana Bozesan
Broker imobiliar

0744427504


Solicită chiar acum o vizionare
Telefon
Sună acum Solicită vizionare
Necesare:

Site-ul nu poate funcționa corect fără aceste cookie-uri. Vezi cookie-urile

Statistică:

Strângem statistici anonime despre voi, vizitatorii unici, pentru a vă îmbunătăți experiența dumneavoastră. Vezi cookie-urile

Marketing:

Pentru a ne promova mai eficient serviciile noastre, folosim cookies pentru a vă identifica și a vă oferi proprietăți și servicii personalizate. Vezi cookie-urile

Acest site folosește cookies, află detalii. Alege ce tipuri de cookies dorești să permitem: