ID CP2298176

Casa Individuala cu 450 mp de curte si Carport, in Poplaca

ID CP2298176

210,000 €

Casă / Vilă cu 4 camere de vânzare
Poplaca
128 mp
2024

Casa individuala si Carport pentru masina, situata in Poplaca

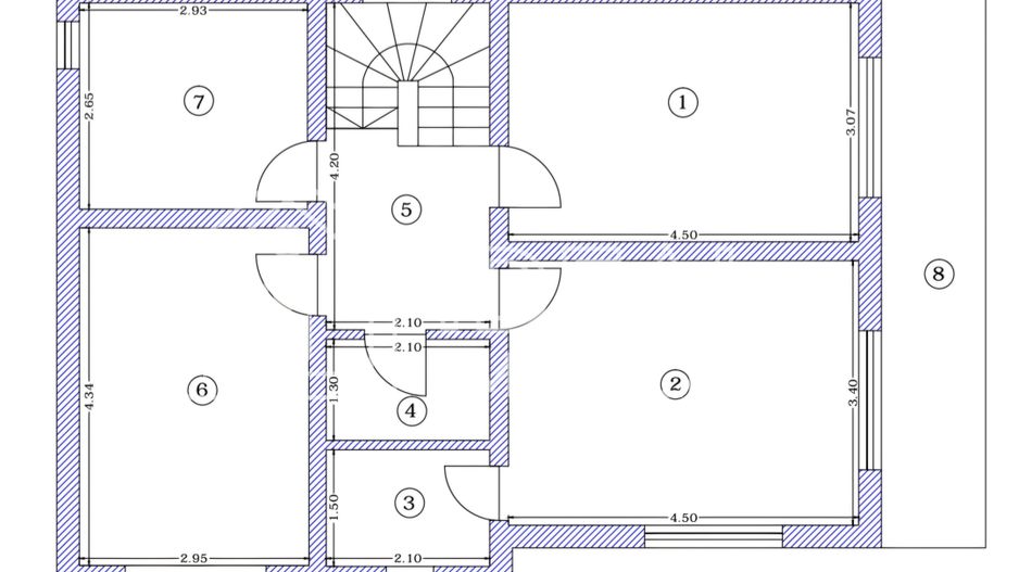
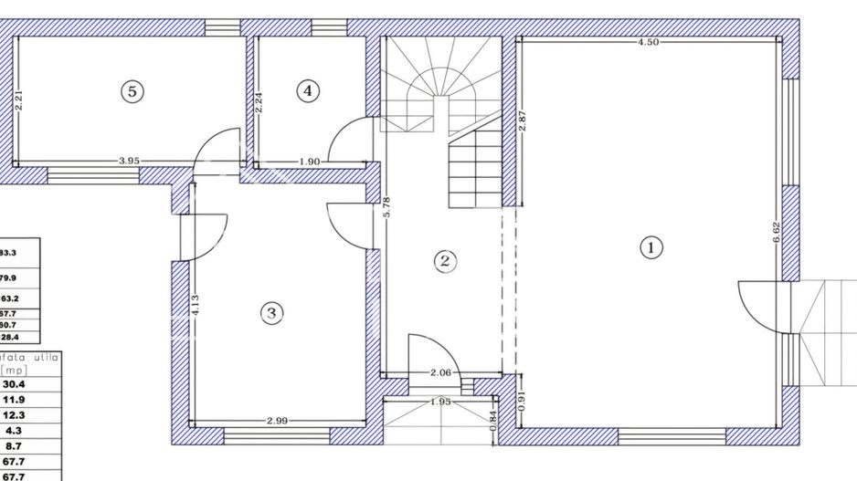
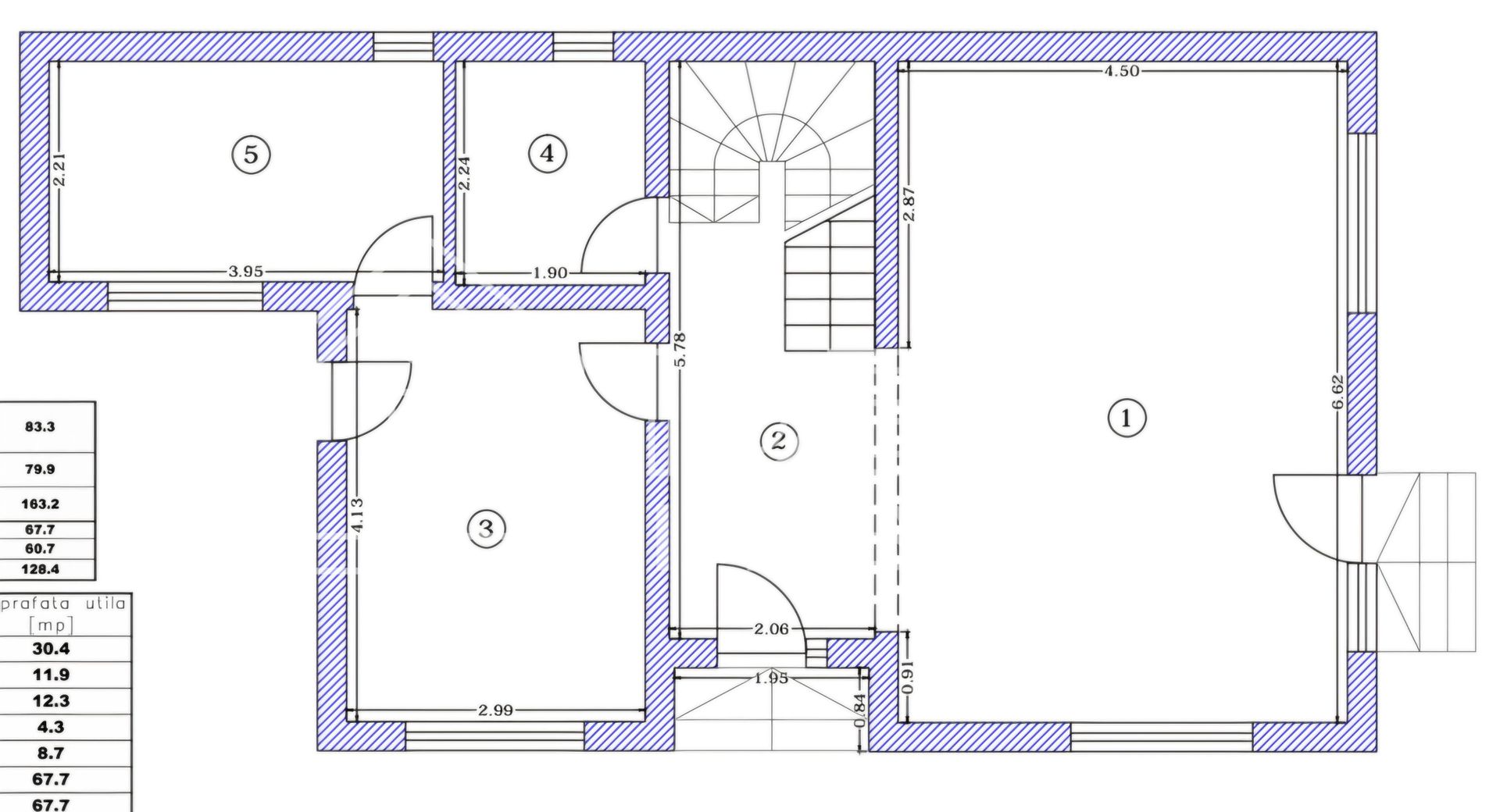
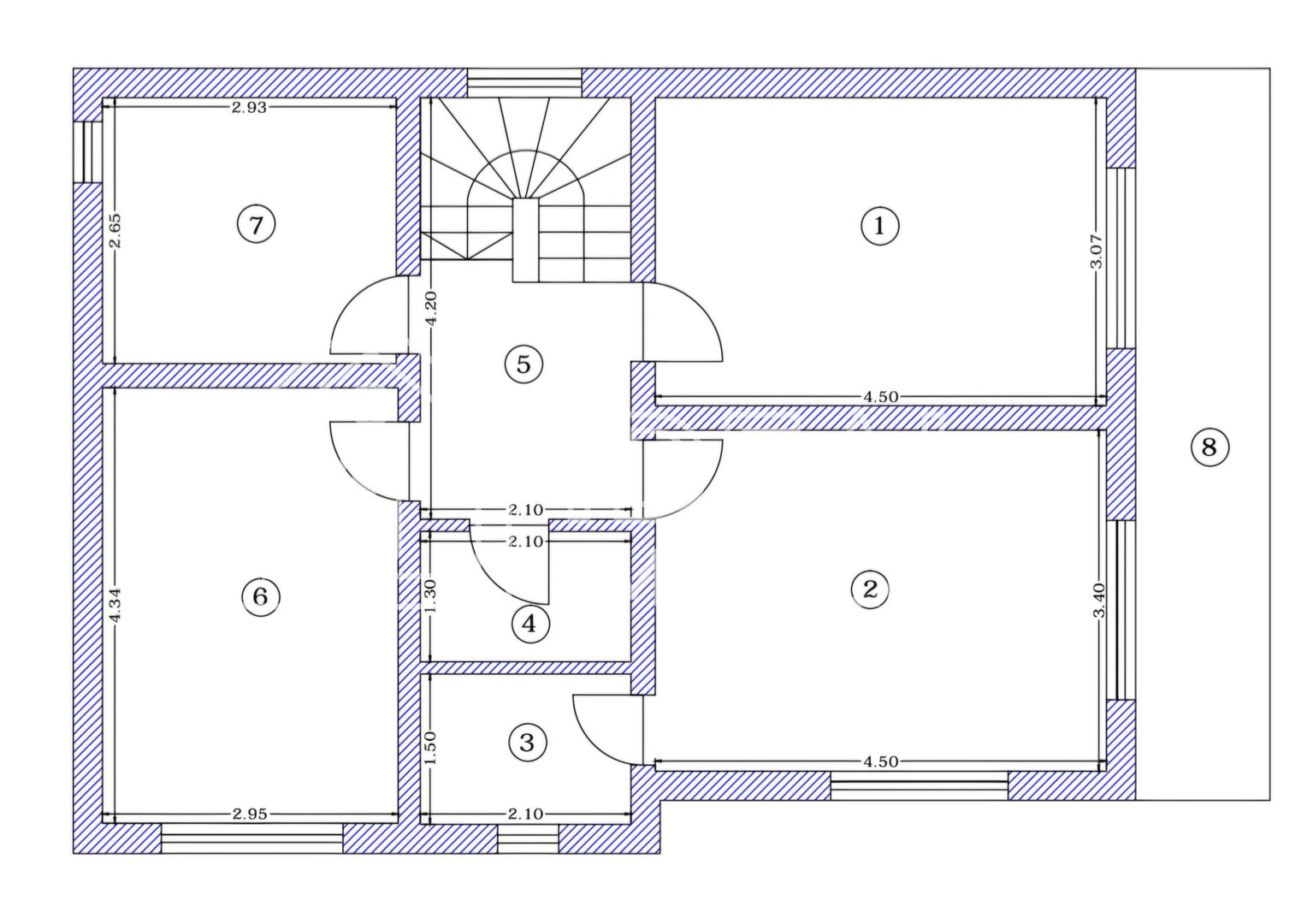
Imobilul are un regim de inaltime de P+1+Pod, are o suprafata utila de 128 de mp si este amplasat pe o parcela de 400 de mp.

Compartimentare eficienta:

-Parter: hol generos (11.9 mp), care face legătura între un living in suprafata de 30mp cu acces direct pe terasă, perfect pentru relaxare în aer liber. Bucătăria (12.3 mp) este închisă, oferind un spațiu funcțional și bine delimitat. La parter mai găsim și o cameră tehnică (8.7 mp) utilă pentru depozitarea echipamentelor, dar și o baie (4.3 mp).

-Etaj: La etaj se află 3 dormitoare, cu suprafețe de 12.8 mp, 13.8 mp și 15.3 mp. Dormitorul matrimonial dispune de o baie proprie de 3.2 mp, iar celelalte două dormitoare au acces la un balcon comun și sunt deservite de o a doua baie de 7.8 mp, amplasată pe hol. În plus, etajul include un dressing de 2.7 mp, ideal pentru depozitarea hainelor și accesoriilor.

-Pod de depozitare;

Avantaje:

Locație liniștită, departe de aglomerația urbană, dar la doar 5 minute de centrul orașului Sibiu.

Priveliște panoramică asupra munților și dealurilor din jur.

Teren propriu generos.

Construcție modernă, cu finisaje de calitate.

Posibilitate de personalizare a imobilului în funcție de stadiul de predare.

Modalități de plată acceptate: cash/credit bancar.

Prețuri:

-La alb (perete interior tencuit, instalatii sanitare, electrice și finisaje de bază): 210.000 euro

Telefon: 0744427504 Mariana

Citește mai mult

  • Număr camere
    4
  • Dormitoare
    3
  • Număr bucătării
    1
  • Număr băi
    2
  • Geam la baie
    Da
  • Număr balcoane
    1
  • Număr terase
    1
  • Număr locuri parcare
    3
  • Disponibilitate
    Imediat
  • Tip casă
    Individual
  • Stare interior
    Finisat modern
  • Anul finisării
    2025
  • Suprafață utilă
    128 mp
  • Suprafață construită
    145 mp
  • Suprafață construită la sol (Amprentă)
    100.0 mp
  • Suprafață teren
    450 mp
  • Suprafață curte liberă
    230 mp
  • Deschidere
    15 m
  • Acoperiș
    Țiglă
  • Stadiu construcție
    Finalizată
  • An construcție
    2024
  • Construcție nouă
    Da
  • De la dezvoltator
    Da
  • Tip construcție
    Cărămidă
  • Număr etaje clădire
    1

Facilități

Acoperiș
Apă
Apometre
Canalizare
CATV
Contor căldură
Contor electric
Contor gaz
Curent
Curte
Gaz
Geamuri tripan
Grădină proprie
Iluminat stradal
Încălzire prin pardoseală
Internet
Izolație exterioară
Jaluzele orizontale
Mijloace de transport în comun
Parcare acoperită
Pompă de căldură
Șapă
Străzi asfaltate
Telefon
Ușă intrare metal
Vedere panoramică
Vopsea lavabilă
WC Serviciu
Wireless
Mariana Bozesan - Ideal Imobiliare
Mariana Bozesan
Broker imobiliar

0744427504


Solicită chiar acum o vizionare
Telefon
Sună acum Solicită vizionare
Necesare:

Site-ul nu poate funcționa corect fără aceste cookie-uri. Vezi cookie-urile

Statistică:

Strângem statistici anonime despre voi, vizitatorii unici, pentru a vă îmbunătăți experiența dumneavoastră. Vezi cookie-urile

Marketing:

Pentru a ne promova mai eficient serviciile noastre, folosim cookies pentru a vă identifica și a vă oferi proprietăți și servicii personalizate. Vezi cookie-urile

Acest site folosește cookies, află detalii. Alege ce tipuri de cookies dorești să permitem: