ID CP2832883

Casă modernă cu 4 camere și 300 mp de curte, in Sura Mica

ID CP2832883

157,000 € + 21% TVA

Casă / Vilă cu 4 camere de vânzare
Sura Mica
120 mp
2025

Vă propunem spre vânzare un duplex modern, situat într-o zonă centrală și liniștită din Șura Mică, într-un cartier rezidențial de construcții noi, cu acces rapid către Sibiu, Autostradă și Zona Industrială Vest.

Proprietatea oferă un echilibru ideal între confort, funcționalitate și intimitate, fiind potrivită pentru o familie care își dorește liniște, dar și acces facil către oraș.

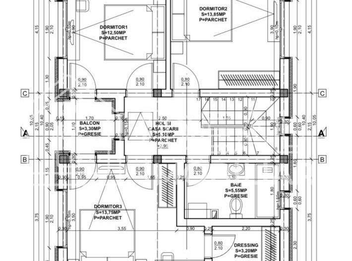
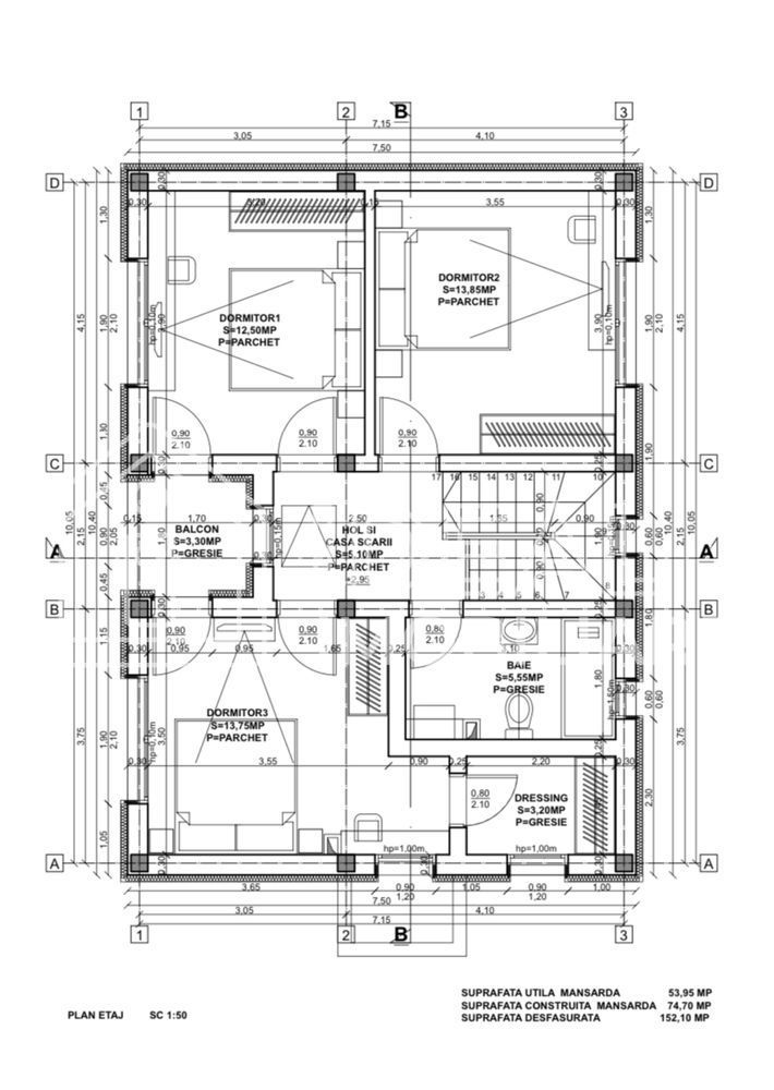
Compartimentare:

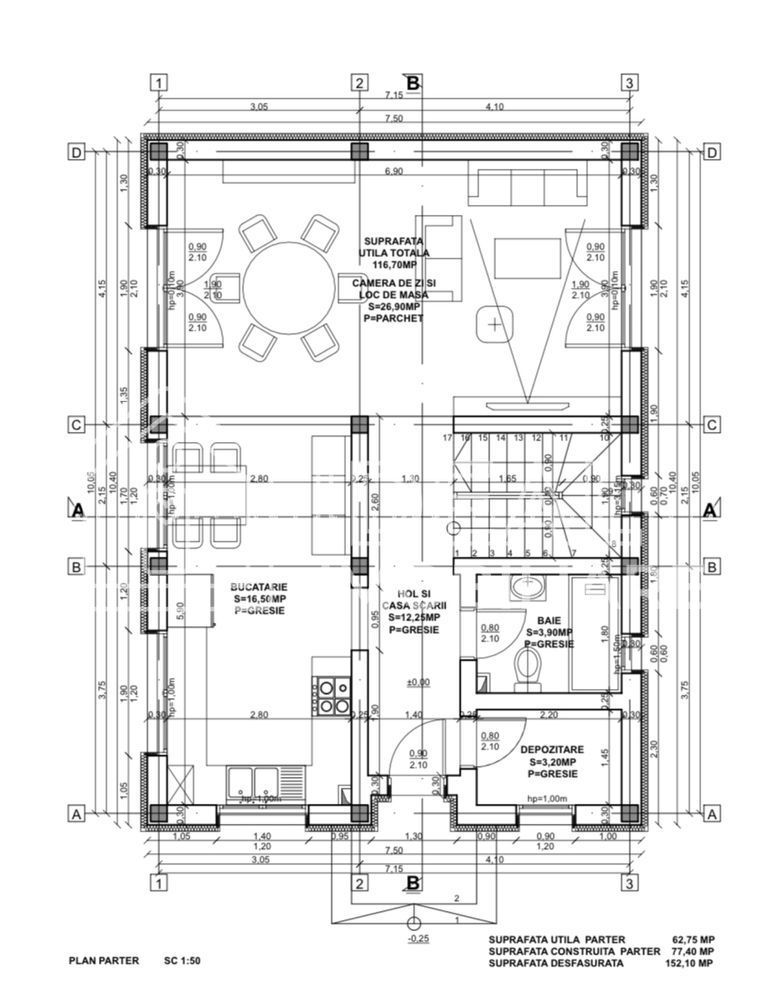
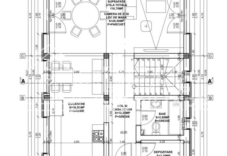
-Parter: hol de acces, living spațios și luminos, bucătărie separată, baie cu geam pentru aerisire naturală, debara.

-Etaj: trei dormitoare, dintre care un dormitor matrimonial cu dressing, baie cu geam și balcon cu vedere plăcută.

Detalii imobil:

Suprafață utilă: 116,7 mp

Teren total: 300 mp (curte liberă aproximativ 230 mp)

Regim de înălțime: Parter + Etaj

Balcon: 3,3 mp

Locuri de parcare: 2

Avantaje și dotări:

Zonă rezidențială nouă, cu vecinătăți curate și liniștite

Încălzire în pardoseală

Spații de depozitare bine gândite (dressing + debara)

Curte generoasă, ideală pentru zonă de relaxare, terasă sau loc de joacă

Acces auto amenajat

Străzi asfaltate și iluminate

Stadiu de predare:

Exterior: la cheie

Interior: la alb – pereți finisați și zugrăviți, șape turnate, instalații electrice și sanitare trase, tâmplărie PVC cu geam termopan.

Modalități de plată acceptate: numerar sau credit bancar – prețul rămâne neschimbat indiferent de modalitatea de achiziție.

Pret: 157.000 Euro + TVA

Telefon: 0744427504 - Mariana

Citește mai mult

  • Număr camere
    4
  • Dormitoare
    3
  • Număr bucătării
    1
  • Număr băi
    2
  • Geam la baie
    Da
  • Număr balcoane
    1
  • Număr terase
    1
  • Număr locuri parcare
    4
  • Disponibilitate
    Imediat
  • Tip casă
    Individual
  • Stare interior
    Finisat modern
  • Anul finisării
    2025
  • Suprafață utilă
    120 mp
  • Suprafață construită
    145 mp
  • Suprafață construită la sol (Amprentă)
    70.0 mp
  • Suprafață teren
    300 mp
  • Suprafață curte liberă
    230 mp
  • Deschidere
    15 m
  • Acoperiș
    Țiglă
  • Stadiu construcție
    Finalizată
  • An construcție
    2025
  • Construcție nouă
    Da
  • De la dezvoltator
    Da
  • Tip construcție
    Cărămidă
  • Număr etaje clădire
    1
  • Are pod
    Da

Facilități

Acoperiș
Apă
Apometre
Canalizare
Centrală proprie
Contor căldură
Contor electric
Contor gaz
Curent
Gaz
Geamuri tripan
Încălzire prin pardoseală
Izolație exterioară
Șapă
Ușă intrare metal
Vedere panoramică
Vedere spre lac
Vedere spre mare
Vedere spre munte
Vedere spre oraș
Vopsea lavabilă
Mariana Bozesan - Ideal Imobiliare
Mariana Bozesan
Broker imobiliar

0744427504


Solicită chiar acum o vizionare
Telefon
Sună acum Solicită vizionare
Necesare:

Site-ul nu poate funcționa corect fără aceste cookie-uri. Vezi cookie-urile

Statistică:

Strângem statistici anonime despre voi, vizitatorii unici, pentru a vă îmbunătăți experiența dumneavoastră. Vezi cookie-urile

Marketing:

Pentru a ne promova mai eficient serviciile noastre, folosim cookies pentru a vă identifica și a vă oferi proprietăți și servicii personalizate. Vezi cookie-urile

Acest site folosește cookies, află detalii. Alege ce tipuri de cookies dorești să permitem: