ID CP1321168

Casa Exclusivista cu piscina si 1200 mp de teren, in Cisnadie

ID CP1321168

550,000 € + 21% TVA

Casă / Vilă cu 5 camere de vânzare
Central, Cisnadie
250 mp
2021

Casa unifamiliala pe doua nivele cu arhitectura moderna situata in Cisnadie, amplasata pe un teren de 1.200 de mp.

O locuinta compacta si eleganta, cu spatiu de relaxare generos atat la interior, cat si in exterior. Peisajul inconjurator cu vedere spre cetatea Cisnadioarei si varful Magura, te trimite cu gandul la locuintele de vacanta.

Locuinta dotata cu garaj, o piscina generoasa si terasa acoperita ,

-Compartimentarea este facuta astfel:

-Parter - compus din hol de acces de 20,1 mp, un grup sanitar de 8,2 mp, o bucatarie + un living generos de 63.3 mp, o debara de 2,2 mp, o piscina interioara de 52,4 mp, o terasa de 44,7 mp si un garaj de 19.8 mp.

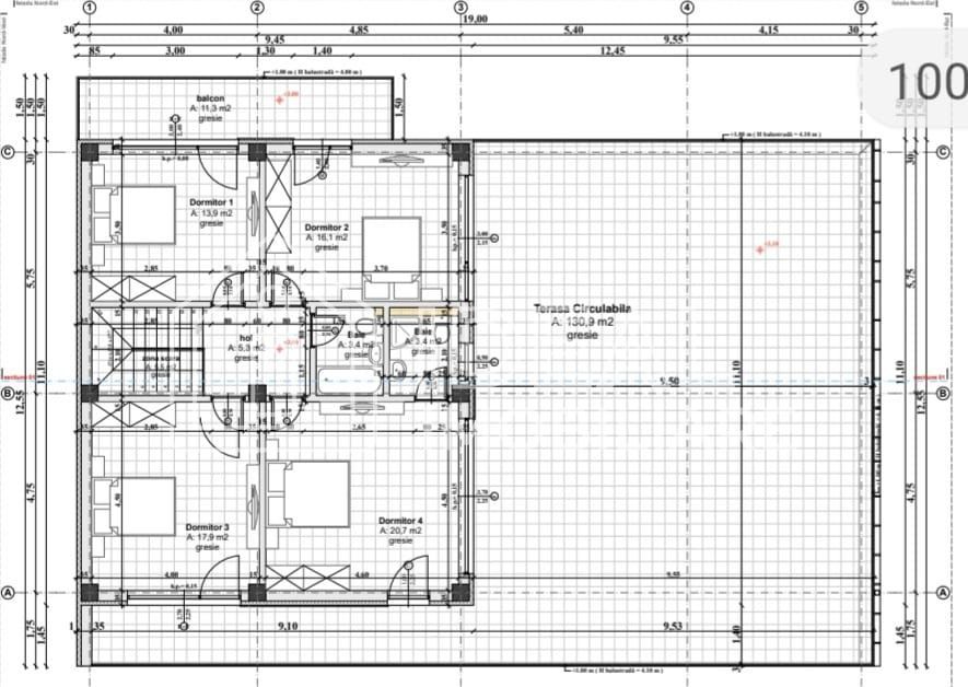
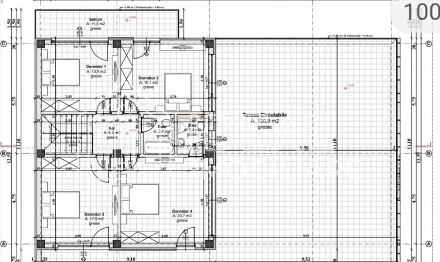
-Etaj - compus din scari interioare + hol de 5,3 mp, care separa 4 dormitoare de 13,9 mp + 16,1 mp + 17,9 mp + 20,7 mp, 2 grupuri sanitare de 3,4 mp si 3,4 mp, un balcon de 11,3 mp si o terasa circulabila generoasa de 130.9 mp.

-Casele Se predau la stadiul 'CHEIE la interior astfel: peretii complet finisati inclusiv lavabila alba, sape elicopterizate, gresie, parchet, usi, prize si intrerupatoare, sanitarele la bai, instalatie de incalzire prin pardoseala la etaj si parter,centrala termica in condensare, instalatie electrica completa,instalatie sanitara pe pozitie,toate utilitatiile cu contoare montate.

Exteriorul se preda la CHEIE.

Pret: 550.000 Euro

Telefon: 0744427504 - Mariana

Citește mai mult

  • Număr camere
    5
  • Dormitoare
    4
  • Număr bucătării
    1
  • Număr băi
    3
  • Geam la baie
    Da
  • Număr balcoane
    1
  • Număr terase
    1
  • Număr garaje
    1
  • Număr locuri parcare
    4
  • Disponibilitate
    Imediat
  • Tip casă
    Individual
  • Stare interior
    Finisat modern
  • Anul finisării
    2021
  • Suprafață utilă
    250 mp
  • Suprafață construită
    260 mp
  • Suprafață construită la sol (Amprentă)
    130.0 mp
  • Suprafață teren
    1,200 mp
  • Suprafață curte
    1,100 mp
  • Suprafață curte liberă
    1,100 mp
  • Suprafață terasă
    130 mp
  • Deschidere
    30 m
  • Acoperiș
    Tablă
  • Stadiu construcție
    În construcție
  • An construcție
    2021
  • Construcție nouă
    Da
  • De la dezvoltator
    Da
  • Tip construcție
    Cărămidă
  • Număr etaje clădire
    1

Facilități

Acoperiș
Apă
Apometre
Canalizare
CATV
Contor căldură
Contor electric
Contor gaz
Curent
Garaj
Gaz
Geamuri termopan
Grădină proprie
Iluminat stradal
Încălzire prin pardoseală
Interfon
Internet
Izolație exterioară
Mijloace de transport în comun
Piscină interioară
Șapă
Străzi asfaltate
Telefon
Vedere panoramică
Vopsea lavabilă
Wireless
Mariana Bozesan - Ideal Imobiliare
Mariana Bozesan
Broker imobiliar

0744427504


Solicită chiar acum o vizionare
Telefon
Sună acum Solicită vizionare
Necesare:

Site-ul nu poate funcționa corect fără aceste cookie-uri. Vezi cookie-urile

Statistică:

Strângem statistici anonime despre voi, vizitatorii unici, pentru a vă îmbunătăți experiența dumneavoastră. Vezi cookie-urile

Marketing:

Pentru a ne promova mai eficient serviciile noastre, folosim cookies pentru a vă identifica și a vă oferi proprietăți și servicii personalizate. Vezi cookie-urile

Acest site folosește cookies, află detalii. Alege ce tipuri de cookies dorești să permitem: