ID CP2538216

Vila Moderna cu 5 camere, garaj si 921 mp de curte, in Tocile

ID CP2538216

289,000 € (negociabil)

Casă / Vilă cu 5 camere de vânzare
Sadu
202 mp
2011

Situată la poalele munților Cindrel, in Tocile-Sadu vă prezentăm o reședință extraordinară cu o vedere panoramica de poveste.

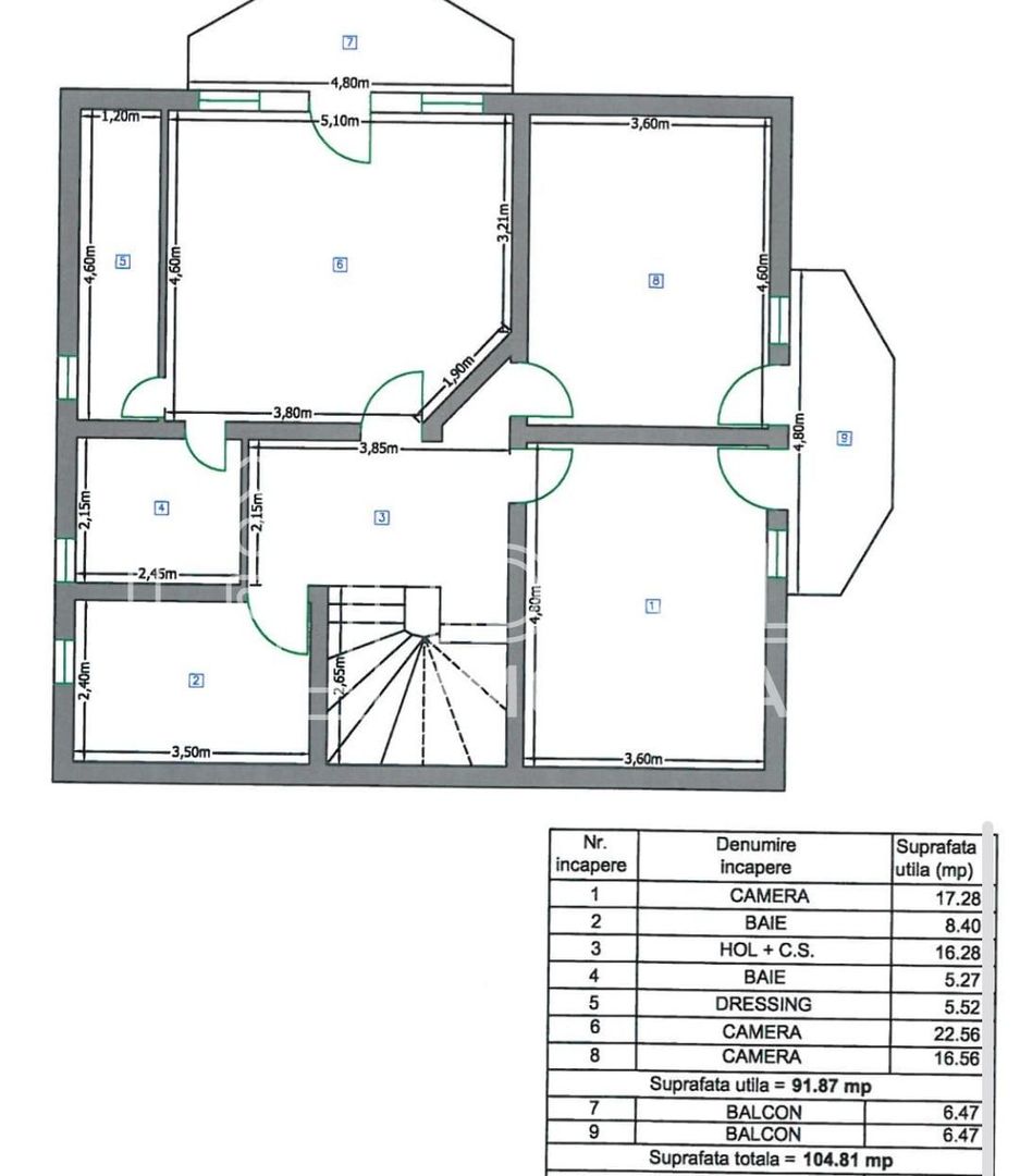
Casa are o suprafata utila 200 mpu, plus doua terase mari si garaj, are un regim de inaltime P+Ez+P, amplasata pe un teren de 1.100 mpu, ea este structurata astfel:

-Garaj -27 mpu;

-Parter: compus dintr-un antreu de acces, living generos cu zona de luat masa, bucatarie separata, o baie de serviciu, birou/camera de depozitare;

-Etaj: hol cu scara interioara, dormior matrimonial cu dressing si baie proprie 30 mpu plus acces spre un balcon de 6 de mpu cu view panoramic,

doua dormitoare de 16 mpu, si 17 mpu, si o baie mare.

-Stadiul de predare al casei este complet MOBILAT si UTILAT, la interior cu sapele turnate, incalzire prin pardoseala,centrala pe lemne, usa de intrare, doua straturi de lavabila, geamuri din termopan cu profil PVC din 7 camere si 3 sticle, curent trifazic, canalizare.

Exteriorul se preda "LA CHEIE' cu pavaj, gard de imprejmuire, poarta acces auto si acces pietonal.

- Se poate achiziotiona prin orice modalitate de plata.

Zona beneficiează de liniște, înconjurată de proprietăți private cu suprafețe mari de teren. Situarea la numai 12 km de Sibiu, asigură acces direct și rapid în oraș.

Vă invităm la vizionare!

Pret: 289.000 Euro

Telefon: 0744427504-Mariana

Citește mai mult

  • Număr camere
    5
  • Dormitoare
    3
  • Număr bucătării
    2
  • Număr băi
    3
  • Geam la baie
    Da
  • Număr balcoane
    2
  • Număr terase
    1
  • Număr garaje
    1
  • Număr locuri parcare
    6
  • Disponibilitate
    Imediat
  • Tip casă
    Individual
  • Stare interior
    Finisat modern
  • Anul finisării
    2012
  • Suprafață utilă
    202 mp
  • Suprafață construită
    250 mp
  • Suprafață construită la sol (Amprentă)
    120.0 mp
  • Suprafață teren
    1,100 mp
  • Suprafață curte
    980 mp
  • Suprafață curte liberă
    980 mp
  • Suprafață terasă
    15 mp
  • Deschidere
    15 m
  • Acoperiș
    Țiglă
  • Stadiu construcție
    Finalizată
  • An construcție
    2011
  • Construcție nouă
    Da
  • Tip construcție
    Cărămidă
  • Număr etaje clădire
    1
  • Are pod
    Da

Facilități

Acoperiș
Apă
Apometre
Aragaz
Bideu
Bucătărie mobilată
Bucătărie utilată
Cabină de duș
Cadă
Canalizare
CATV
Centrală cu lemne
Contor căldură
Contor electric
Contor gaz
Curent
Dressing
Frigider
Garaj
Gaz
Hotă
Iluminat stradal
Încălzire prin pardoseală
Internet
Izolație exterioară
Mașină de spălat rufe
Mașină de spălat vase
Mijloace de transport în comun
Mobilat complet
Parchet
Străzi asfaltate
Telecomandă poartă garaj
Telefon
Ușă intrare metal
Uși interior lemn
Vedere panoramică
Vopsea lavabilă
Mariana Bozesan - Ideal Imobiliare
Mariana Bozesan
Broker imobiliar

0744427504


Solicită chiar acum o vizionare
Telefon
Sună acum Solicită vizionare
Necesare:

Site-ul nu poate funcționa corect fără aceste cookie-uri. Vezi cookie-urile

Statistică:

Strângem statistici anonime despre voi, vizitatorii unici, pentru a vă îmbunătăți experiența dumneavoastră. Vezi cookie-urile

Marketing:

Pentru a ne promova mai eficient serviciile noastre, folosim cookies pentru a vă identifica și a vă oferi proprietăți și servicii personalizate. Vezi cookie-urile

Acest site folosește cookies, află detalii. Alege ce tipuri de cookies dorești să permitem: