ID CP2043696

Casa Individuala cu 7 camere Mobilata si Utilata, zona Turnisor

Această proprietate nu mai este activă,
te invităm să vizualizezi proprietăți similare

ID CP2043696

349,000 € (negociabil)

Casă / Vilă cu 7 camere de vânzare
Turnisor, Sibiu
295 mp
1990

Vila Superba situata in cartierul Turnisor pe Strada Ed.Bieltz este amplasată pe un teren in suprafata totala de 160mpu, cu acces din 2 strazi si cu intrare direct in garajul prevazut cu poarta automatizata.

Locuinta are o suprafata totala de 295 mp utili si este compartimentata astfel:

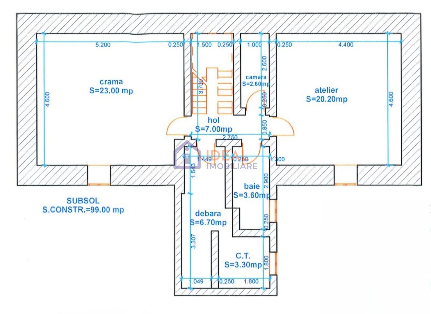
-Subsol: cramă, baie, debara, cămară, hol si pivnita;

-Parter: living, bucatarie separata, dinning , hol si acces spre o terasa acoperita si gradina.

-Etaj: 3 dormitoare generoase de 16, 18 si 19 mpu, dormitorul matromonial fiind amenajat cu baie proprie, hol si inca o baie;

-Mansarda: o camera generoasa amenajata ca si birou si doua spatii mari de depozitare.

-Exteriorul este amenajat complet cu gard de imprejmuire, curte amenajata cu plante decorative, garaj cu acces direct din strada principala, terasa acoperita amenajata cu mobilier.

De asemenea locuinta beneficiaza de supraveghere video, semineu electric, alarma cu senzori de miscare pe fiecare nivel, sonerie video, tamplarie Salamander cu 3 foi de sticla, scari interioare din lemn masiv. Intsalatia electrica si sanitara a fost complet refacuta conform ultimelor standarde.

Mai mult de atat, pe langa materialele de inata calitate care s-au folosit la renovarea casei, ea se preda complet Mobilata si Utilata avand un design UNIC, fiind adaptate special pentru aceasta proprietate obiecte de mobilier din lemn masiv, obiecte reconditionate si facute manual.

Pozitia casei este avantajata de faptul ca are acces facil atat spre cartierul Strand, cat si spre Turnisor.

Pentru mai multe detalii va asteptam la vizionare!

pRET: 349.000 Euro

Telefon: 0744427504

Citește mai mult

  • Număr camere
    7
  • Dormitoare
    3
  • Număr bucătării
    1
  • Număr băi
    3
  • Geam la baie
    Da
  • Număr balcoane
    1
  • Număr terase
    1
  • Număr garaje
    1
  • Număr locuri parcare
    2
  • Disponibilitate
    Imediat
  • Tip casă
    Individual
  • Stare interior
    Ultrafinisat
  • Anul finisării
    2024
  • Suprafață utilă
    295 mp
  • Suprafață construită
    351 mp
  • Suprafață construită la sol (Amprentă)
    140.0 mp
  • Suprafață teren
    160 mp
  • Suprafață curte
    100 mp
  • Suprafață curte liberă
    80 mp
  • Suprafață terasă
    25 mp
  • Deschidere
    15 m
  • Acoperiș
    Țiglă
  • Stadiu construcție
    Finalizată
  • An construcție
    1990
  • Tip construcție
    Cărămidă
  • Număr etaje clădire
    1
  • Are mansardă
    Da

Facilități

Acoperiș
Apă
Apometre
Aragaz
Bideu
Boxă la subsol
Bucătărie mobilată
Bucătărie utilată
Cabină de duș
Canalizare
CATV
Centrală proprie
Contor căldură
Contor electric
Contor gaz
Curent
Debara
Dressing
Frigider
Garaj
Gaz
Geamuri tripan
Grădină proprie
Hotă
Iluminat stradal
Încălzire prin pardoseală
Interfon
Internet
Izolație exterioară
Izolație interioară
Magazie
Mașină de spălat rufe
Mașină de spălat vase
Mijloace de transport în comun
Mobilat complet
Parcare acoperită
Parchet
Pivniță
Scară interioară
Străzi asfaltate
Tapet
Telecomandă poartă garaj
Telefon
Ușă intrare metal
Uși interior lemn
Vedere panoramică
Videointerfon
Vopsea lavabilă
WC Serviciu
Necesare:

Site-ul nu poate funcționa corect fără aceste cookie-uri. Vezi cookie-urile

Statistică:

Strângem statistici anonime despre voi, vizitatorii unici, pentru a vă îmbunătăți experiența dumneavoastră. Vezi cookie-urile

Marketing:

Pentru a ne promova mai eficient serviciile noastre, folosim cookies pentru a vă identifica și a vă oferi proprietăți și servicii personalizate. Vezi cookie-urile

Acest site folosește cookies, află detalii. Alege ce tipuri de cookies dorești să permitem: