ID CP1443637

Casa Individuala Morderna cu 4 camere si 450 de mp de curte

ID CP1443637

450,000 € + 21% TVA

Casă / Vilă cu 5 camere de vânzare
Vasile Aaron, Sibiu
210 mp
2022

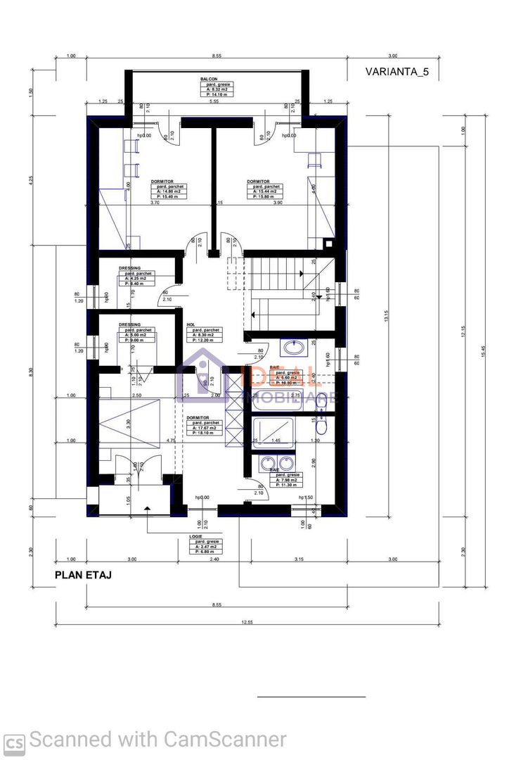
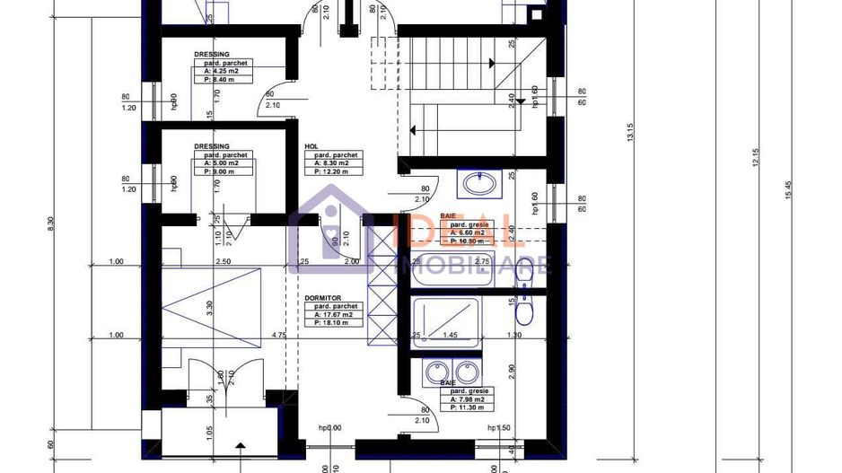
Casa Individuala Moderna, cu un regim de inaltime P+1+Pod, amplasata pe un teren de 450 de mp, ea situata in zona El Gringo, in Selimbar si este compartimentata astfel:

-Parter: Hol de acces, bucatarie decomandata, zona de luat masa, baie de servici, birou cu baie proprie. living generos cu acces spre terasa,camera tehnica si garajul in suprafata de 30 de mp utili cu acces atat din holul principal, cat si din curte;

-Etaj: 3 dormitoare, dormitorul matrimonial cu balcon, dressing si baie, respectiv cele doua dormitoare in oglinda cu balcon, dressing si baie.

-Pod de depozitare;

-Casele Se predau la stadiul 'GRI AVANSAT' la interior astfel: peretii complet finisati , sape elicopterizate, instalatie de incalzire prin pardoseala la etaj si parter,centrala termica in condensare, instalatie electrica completa ,instalatie sanitara pe pozitie,toate utilitatiile cu contoare montate, scara pod.

-La exterior acestea se predau 'LA CHEIE' astfel: gresie antiderapanta pe balcon si intrare, si loc de parcare in curte amenajate cu dale de beton,gard de imprejmuire,poarta acces auto (inclusiv poarta de la garaj) si portita de intrare.

-La cerere casele Se pot preda si la stadiul 'LA CHEIE' la interior.

Pret: 455.000 Euro + Tva

Telefon: 0744427504

Citește mai mult

  • Număr camere
    5
  • Dormitoare
    3
  • Număr bucătării
    1
  • Număr băi
    4
  • Geam la baie
    Da
  • Număr balcoane
    2
  • Număr terase
    1
  • Număr garaje
    1
  • Număr locuri parcare
    4
  • Disponibilitate
    Imediat
  • Tip casă
    Individual
  • Stare interior
    Finisat modern
  • Anul finisării
    2022
  • Suprafață utilă
    210 mp
  • Suprafață construită
    240 mp
  • Suprafață construită la sol (Amprentă)
    120.0 mp
  • Suprafață teren
    450 mp
  • Suprafață curte liberă
    330 mp
  • Suprafață terasă
    26 mp
  • Deschidere
    25 m
  • Acoperiș
    Țiglă
  • Stadiu construcție
    În construcție
  • An construcție
    2022
  • Construcție nouă
    Da
  • De la dezvoltator
    Da
  • Tip construcție
    Cărămidă
  • Număr etaje clădire
    1
  • Are pod
    Da

Facilități

Acoperiș
Apă
Apometre
Canalizare
CATV
Centrală proprie
Contor căldură
Contor electric
Contor gaz
Curent
Debara
Gaz
Geamuri termopan
Grădină proprie
Iluminat stradal
Încălzire prin pardoseală
Internet
Izolație exterioară
Mijloace de transport în comun
Șapă
Străzi asfaltate
Telefon
Ușă intrare metal
Vedere panoramică
Vopsea lavabilă
WC Serviciu
Zonă pentru barbeque
Mariana Bozesan - Ideal Imobiliare
Mariana Bozesan
Broker imobiliar

0744427504


Solicită chiar acum o vizionare
Telefon
Sună acum Solicită vizionare
Necesare:

Site-ul nu poate funcționa corect fără aceste cookie-uri. Vezi cookie-urile

Statistică:

Strângem statistici anonime despre voi, vizitatorii unici, pentru a vă îmbunătăți experiența dumneavoastră. Vezi cookie-urile

Marketing:

Pentru a ne promova mai eficient serviciile noastre, folosim cookies pentru a vă identifica și a vă oferi proprietăți și servicii personalizate. Vezi cookie-urile

Acest site folosește cookies, află detalii. Alege ce tipuri de cookies dorești să permitem: