ID CP2907980

Teren intravilan 536 mp cu deschidere de 14 m –Piata Cluj

ID CP2907980

215,000 € (negociabil)

Teren de 536 mp de vânzare
Piata Cluj, Sibiu
536 mp

Teren intravilan 536 mp cu deschidere de 14 m – proiect și autorizație de construire incluse

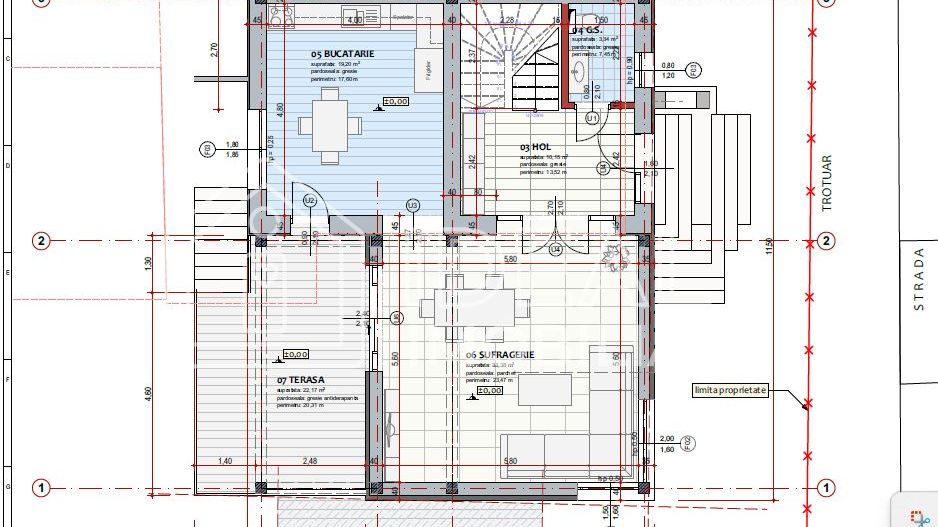
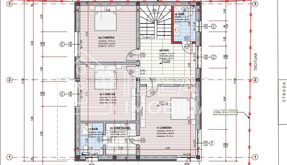
Vă propunem spre vânzare un teren intravilan complet pregătit pentru construcție, cu o suprafață totală de 536 mp și o deschidere de 14 metri la stradă, ideal pentru dezvoltarea unei locuințe moderne, așa cum este proiectul prezentat în imagine.

Caracteristici teren:

Suprafață totală: 536 mp

Deschidere la stradă: 14 ml

Regim juridic: Intravilan, construibil

Utilități: apă, canalizare, gaz, energie electrică – toate la limita proprietății

Acces: drum asfaltat / amenajat

Topografie: teren drept, excelent pentru construcție fără costuri suplimentare de terasament

Avantaje:

Terenul beneficiază deja de autorizație de construire, ideal pentru cei care doresc să înceapă lucrările imediat.

Proiectul aprobat include o casă modernă S+P+E, cu terase generoase, parcare pentru mai multe mașini și un concept arhitectural actual.

Zona este formată exclusiv din case, oferind intimitate și un mediu liniștit.

Poziționare foarte bună, potrivită atât pentru locuință proprie, cât și pentru investiție.

Destinație ideală:

locuință familială modernă

investiție (închiriere pe termen lung / dezvoltare)

Pret: 215.000 Negociabil

Telefon: 0744427504

Citește mai mult

  • Tip teren
    Construcții
  • Suprafață teren
    536 mp
  • Front stradal
    14.0 m
  • Număr fronturi stradale
    1
  • Deschidere la
    Șosea
  • Construcție pe teren
    Da
  • Lățime drum acces
    14.0 m
  • Clasificare
    Intravilan
  • Valoare incidență
    8.53
  • Disponibilitate
    Imediat
  • CUT
    47.0
  • POT (%)
    19.66
  • Autorizație de construcție
    Da
  • PUZ Aprobat
    Da
  • Număr etaje clădire
    1

Facilități

Acces auto
Apă
Canalizare
Curent
Gaz
Iluminat stradal
Mijloace de transport în comun
Străzi asfaltate
Vedere panoramică
Mariana Bozesan - Ideal Imobiliare
Mariana Bozesan
Broker imobiliar

0744427504


Solicită chiar acum o vizionare
Telefon
Sună acum Solicită vizionare
Necesare:

Site-ul nu poate funcționa corect fără aceste cookie-uri. Vezi cookie-urile

Statistică:

Strângem statistici anonime despre voi, vizitatorii unici, pentru a vă îmbunătăți experiența dumneavoastră. Vezi cookie-urile

Marketing:

Pentru a ne promova mai eficient serviciile noastre, folosim cookies pentru a vă identifica și a vă oferi proprietăți și servicii personalizate. Vezi cookie-urile

Acest site folosește cookies, află detalii. Alege ce tipuri de cookies dorești să permitem: